Das Hans-Sachs-Haus wurde in den Zwanziger Jahren vom Essener Architekten Prof. Alfred Fischer entworfen. Der aus mehreren Bauteilen bestehende Gebäudekomplex gehört zu den Wahrzeichen der Stadt Gelsenkirchen.

Die straßenseitigen Bauteile wurden als Stahlbetonskelettbauten mit Rippendecken hergestellt, die Aussteifung erfolgte durch Rahmen und Mauerwerksausfachungen.

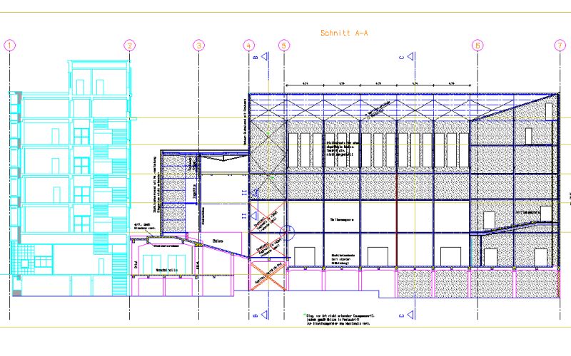
Beschreibung der Rückbaumaßnahmen:

Bei der Entkernung des Gebäudes wurde die denkmalgeschützte straßenseitige Ziegelfassade der Bauteile I, II, III und IV durch eine Stützkonstruktion aus Stahl gehalten. Die Bauteile VI (Musiksaal) und das 1959 errichtete Bauteil V wurden abgebrochen, der markante Hotelturm blieb erhalten.

Eine Herausforderung war die Trennung der zu erhaltenden Fassade von den einbindenden Betonbauteilen. Ursprünglich war geplant, die kompletten angrenzenden Deckenfelder in kleinen Abschnitten geschoßweise mit Kranhilfe zu demontieren.

In Zusammenarbeit mit der Abbruchfirma haben wir ein zeit- und kostengünstiges Konzept für ein Nebenangebot entwickelt, welches zur Ausführung kam.

Die Balken der Rippendecke wurden mit parallel zur Fassade angeordneten Holzstützen abgefangen. Mit der hohen Tragfähigkeit von Holz in Faserrichtung konnte eine wirtschaftliche Lösung erzielt werden. Nach Herstellung der Stützkonstruktion für die Fassade konnte nun eine 1.00m breite Gasse hinter der Fassade geschaffen werden, um den abzubrechenden maroden Gebäudeteil zu trennen. Nach der Trennung konnte konventionell mit einem Bagger mit Longfront-Ausleger und Hydraulikzange abgebrochen werden.

Aufgrund fehlender statischer Altunterlagen musste die Tragwerksstruktur des Musiksaals für die Festlegung der Abbruchreihenfolge vor Ort aufgenommen werden.

Leistung WSP:

Abbruchstatik, Statik für Rückbauzustände, Betreuung der Abbruchfirma vor Ort, Stahlbaupläne

Bauherr:

Stadt Gelsenkirchen Zentrales Immobilienmanagement Rathaus Buer

Planer:

pg NHSH Planungsgemeinschaft Neues Hans-Sachs-Haus

Auftraggeber:

Sperling GmbH