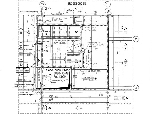
Neubau eines siebengeschossigen Geschäftszentrums in Stahlbetonskelettbauweise mit Flachdecken und einachsig gespannten Decken auf Unterzügen.

Die Gründung erfolgte auf Einzel- und Streifenfundamenten (Kellerwände).

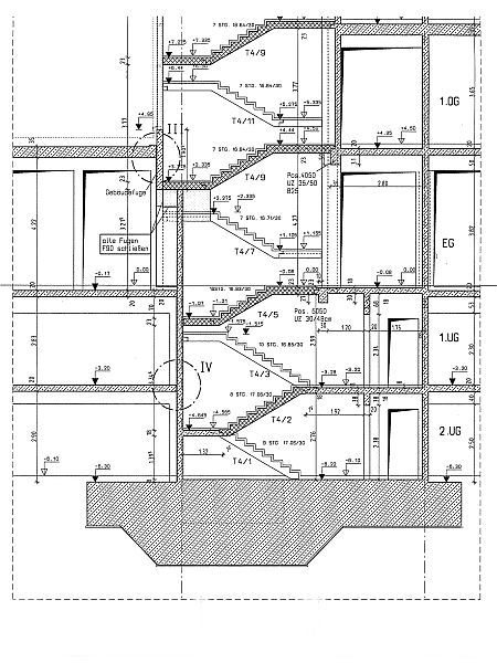
Die Aussteifung erfolgte hauptsächlich durch die fünf Treppenhäuser.

An der nachfolgenden kurzen Schilderung zu Treppenhaus 4 wird deutlich: Das Problem steckt häufig im Detail.  In diesem Treppenhaus mußten die Fertigteiltreppenläufe z.T nach den Maßen der Keramischen Belege angepasst werden, es mußten Deckenversprünge, Gebäudefugen und Versprünge der Treppenhauswände (unterschiedliche Raumgrößen in den Geschossen) berücksichtigt werden. Ein Fertigteiltreppenlauf bildet zusätzlich einen Raumabschluß zum Treppenhaus, so daß hier auch Belange des Schall- und Brandschutzes beachtet werden mußten.

Leistung WSP:

Erstellung von Schalplänen und Betonfertigteilplänen (Gründung, 2.UG, 1.UG, Treppenhaus)

Bauherr:

Zweite Grundstücksgesellschaft Alstertal Dr. Kuhn & Co. KG, Hamburg

Auftraggeber:

Otto Wulff Bauunternehmung GmbH, Hamburg

Architekten:

Planungsgemeinschaft Aumann + Katzsch, Hamburg

Sembritzki & Tran Viet Architekten, Hamburg

Hauptstatik:

Ingenieurbüro Wurr, Neumünster