Neubau eines dreigeschossigen unterkellerten Gebäudes mit Staffelgeschoß in Hamburg-Blankenese. Grundabmessungen ca. 24x11m mit Seitenflügel.

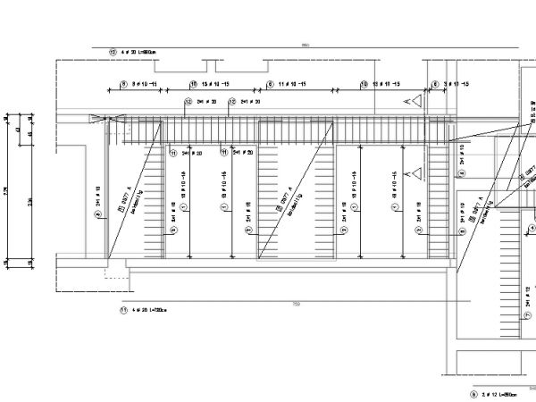
Als anspruchsvoll erwies sich hierbei die Kombination von Wandfertigteilen mit Brespa-Spannbetonhohlplatten und Ortbetonergänzungen, da die Gebäudegrundrisse in allen Geschossen unterschiedlich sind. Somit entstand eine große Anzahl an unterschiedlichen Fertigteilen, die an den Verbindungspunkten besonders sorgfältig ausgearbeitet werden mußten.

Leistung WSP:

Erstellung von Schalplänen und Bewehrungsplänen, Prüfung der Fertigteilpläne

Bauherr:

GbR Bärbel und Dr. Max-Reinhard Winter

Auftraggeber:

Mecklenburger Hochbau GmbH & Co. KG, Schwerin

Architekten:

Chlumsky-Peters-Hildebrand Architekten GmbH, Lübeck

Hauptstatik:

Kockjoy und Partner VBI  Ingenieurbüro für Bauwesen, Hamburg